︎
Benjamin
Han
work
information
contact
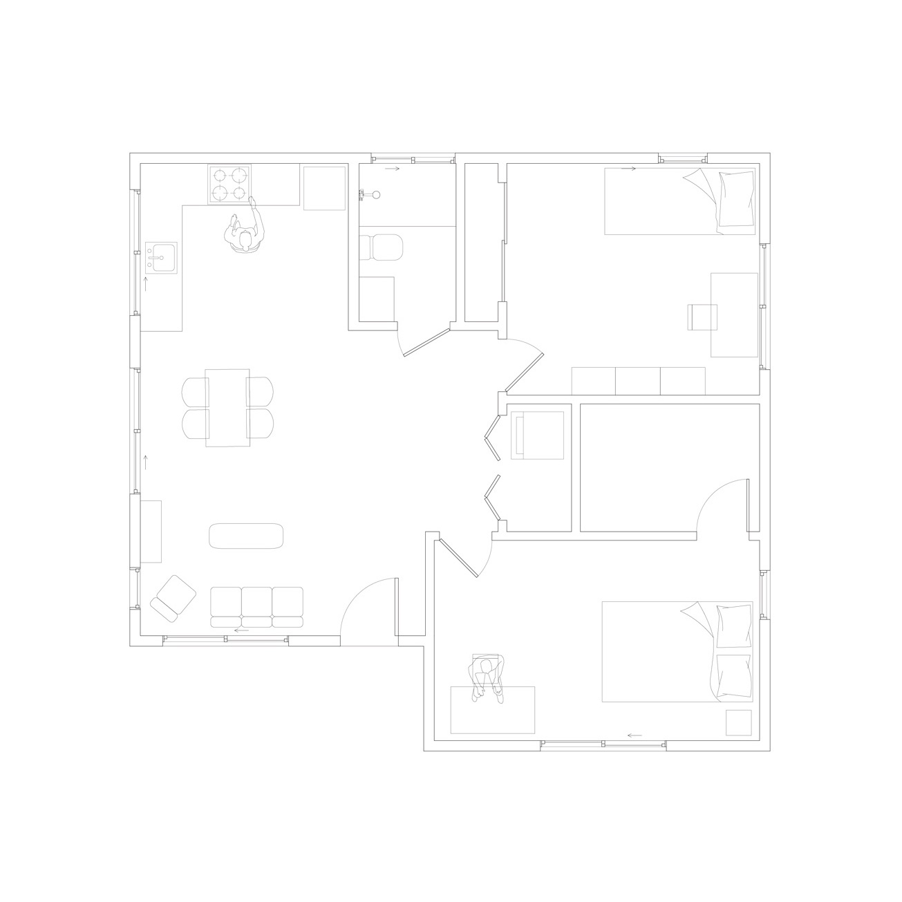
Design for an accessible dwelling unit in Los Angeles, California
︎ Index
Next ︎
Ben Han - 2020 — Vancouver, British Columbia